De Beauvoir Private Flat
Location: London
Status: Complete
Year: 2025
Type: Residential
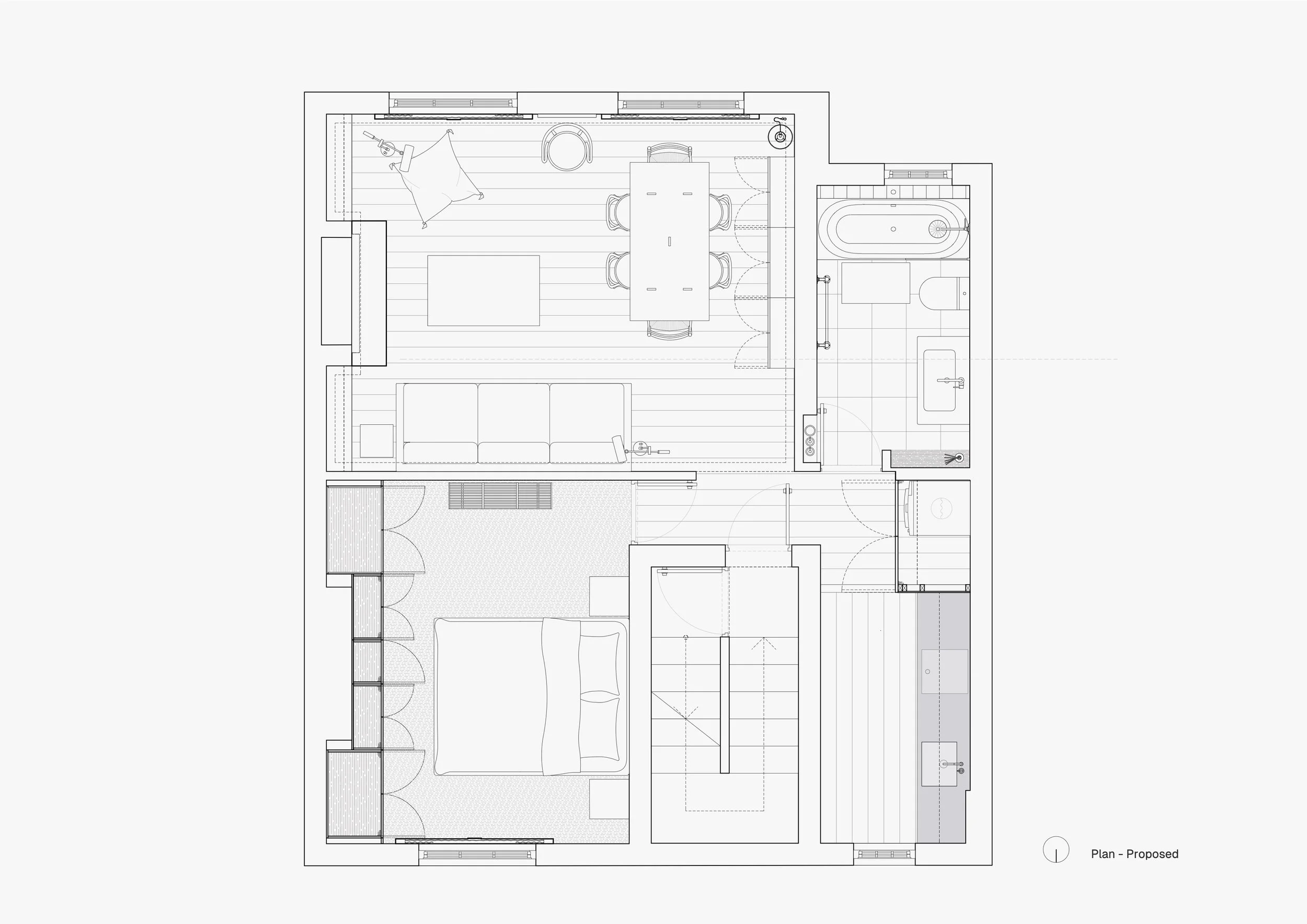
This project is a flat remodelling in the De Beauvoir Town conservation area. The aim of the project was to maximise the flow of light and cross ventilation, this was achieved by remodelling the entrance, pivotal space of the flat, by eliminating doors and introducing mirrored panels to allow the light to reverberate though the flat.